南北东嘻 | 南宁餐饮全案设计
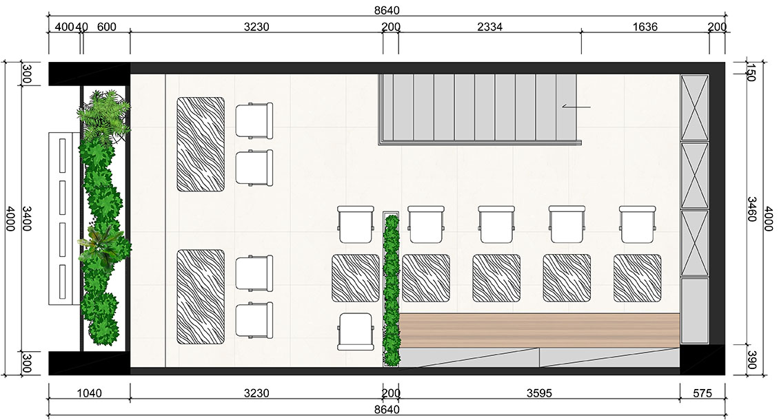
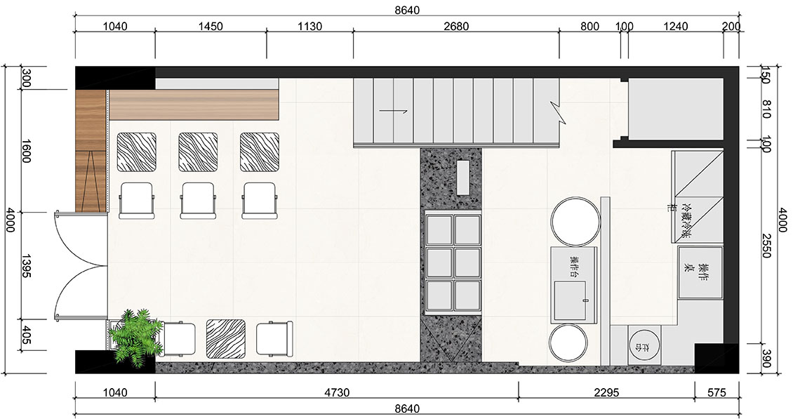
项目名称 | 南北东嘻螺蛳粉
项目类型 | 餐饮全案设计
空间面积 | 70平方米
项目位置 | 南宁 · 东盟盛天地
—
南北东嘻位于南宁东盟盛天地,是一个全新的螺蛳粉品牌,业主也是一位非常年轻的网红美女,创立的初衷是因为业主长期在广西生活,螺蛳粉的美味一直伴随在业主左右,随着事业的上升,业主计划成立自己的螺蛳粉品牌,希望把自己喜爱的美味可以一直延续下去。











Previous Article
Next Article
interiors
鄭記麵店 - 美国西雅图牛肉面馆
Zhengji noodles
2025-11-11 86
interiors
MUGEN - 卢森堡冷翠系日料餐厅
MUGEN
2025-10-15 179
interiors
美国弗吉尼亚-KUSSHI日料
KUSSHI
2025-09-29 216
南北东嘻 | 南宁餐饮全案设计
Liuzhou snail powder
Restaurant | 2022-09-20
1618 文章来源:本站
项目名称 | 南北东嘻螺蛳粉
项目类型 | 餐饮全案设计
空间面积 | 70平方米
项目位置 | 南宁 · 东盟盛天地
—
南北东嘻位于南宁东盟盛天地,是一个全新的螺蛳粉品牌,业主也是一位非常年轻的网红美女,创立的初衷是因为业主长期在广西生活,螺蛳粉的美味一直伴随在业主左右,随着事业的上升,业主计划成立自己的螺蛳粉品牌,希望把自己喜爱的美味可以一直延续下去。











Zhengji noodles
2025-11-11 86
MUGEN
2025-10-15 179
KUSSHI
2025-09-29 216
YIWAN
2025-08-12 226
©万致空间设计深圳有限公司 2010-2021. ALL RIGHTS RESERVED桂ICP备16006701号-3