酒点道 | 温州烧烤酒馆设计
项目类型 | 餐饮空间设计
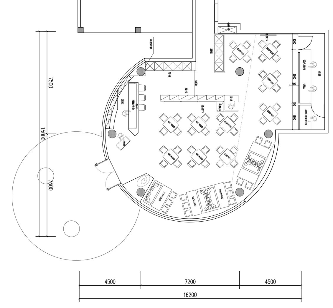
项目名称 | 酒点道烧烤酒馆
设计风格 | 国潮风
项目面积 | 248㎡
项目位置 | 浙江温州
——
本案空间设计以“潮”为理念,在整体中式风格的基础上我们加入了很多现代流行元素来诠释“潮”的理念,旨意打造一个温州地标性的网红打卡烧烤酒馆,让消费者感受全新的潮玩空间。














烤吧设计 | 餐厅设计
酒馆设计 | 餐饮设计
——
- THE END -
Previous Article
Next Article
interiors
鳍匠 - 美国俄亥俄州日料店设计
2026-03-09 108
interiors
原山造物 - 云贵川bistro餐厅设计
Yuan Shan Origins
2026-01-09 275
interiors
MUGEN - 卢森堡冷翠系日料餐厅
MUGEN
2025-10-15 533
酒点道 | 温州烧烤酒馆设计
Wine order
Restaurant | 2022-09-20
1798 文章来源:本站
项目类型 | 餐饮空间设计
项目名称 | 酒点道烧烤酒馆
设计风格 | 国潮风
项目面积 | 248㎡
项目位置 | 浙江温州
——
本案空间设计以“潮”为理念,在整体中式风格的基础上我们加入了很多现代流行元素来诠释“潮”的理念,旨意打造一个温州地标性的网红打卡烧烤酒馆,让消费者感受全新的潮玩空间。














烤吧设计 | 餐厅设计
酒馆设计 | 餐饮设计
——
- THE END -
2026-03-09 108
Yuan Shan Origins
2026-01-09 275
MUGEN
2025-10-15 533
KUSSHI
2025-09-29 554
©万致空间设计深圳有限公司 2010-2021. ALL RIGHTS RESERVED桂ICP备16006701号-3