派-美国245㎡烤肉店设计
项目名称 | 派·烤肉酒馆
设计风格 | 轻欧、复古
项目面积 | 245㎡
项目位置 | 美国弗吉尼亚州
本次设计我们以餐厅消费群体和业主的需求出发,利用装饰材料和灯光设计,营造一个具有品味、符合当地人民审美,同时能满足社交氛围的餐饮空间,并希望通过该设计作品向海外传达中华设计之美。

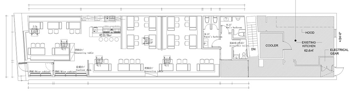
现场情况▼

设计效果▼










烤吧设计 | 餐厅设计
酒馆设计 | 餐饮设计
——
- THE END -
Previous Article
Next Article
interiors
鳍匠 - 美国俄亥俄州日料店设计
2026-03-09 108
interiors
原山造物 - 云贵川bistro餐厅设计
Yuan Shan Origins
2026-01-09 275
interiors
MUGEN - 卢森堡冷翠系日料餐厅
MUGEN
2025-10-15 534
派-美国245㎡烤肉店设计
group
Restaurant | 2024-03-01
1157 文章来源:本站
项目名称 | 派·烤肉酒馆
设计风格 | 轻欧、复古
项目面积 | 245㎡
项目位置 | 美国弗吉尼亚州
本次设计我们以餐厅消费群体和业主的需求出发,利用装饰材料和灯光设计,营造一个具有品味、符合当地人民审美,同时能满足社交氛围的餐饮空间,并希望通过该设计作品向海外传达中华设计之美。

现场情况▼

设计效果▼










烤吧设计 | 餐厅设计
酒馆设计 | 餐饮设计
——
- THE END -
2026-03-09 108
Yuan Shan Origins
2026-01-09 275
MUGEN
2025-10-15 534
KUSSHI
2025-09-29 554
©万致空间设计深圳有限公司 2010-2021. ALL RIGHTS RESERVED桂ICP备16006701号-3