YIWAN - 埃及开罗牛肉面馆设计
项目 | YIWAN
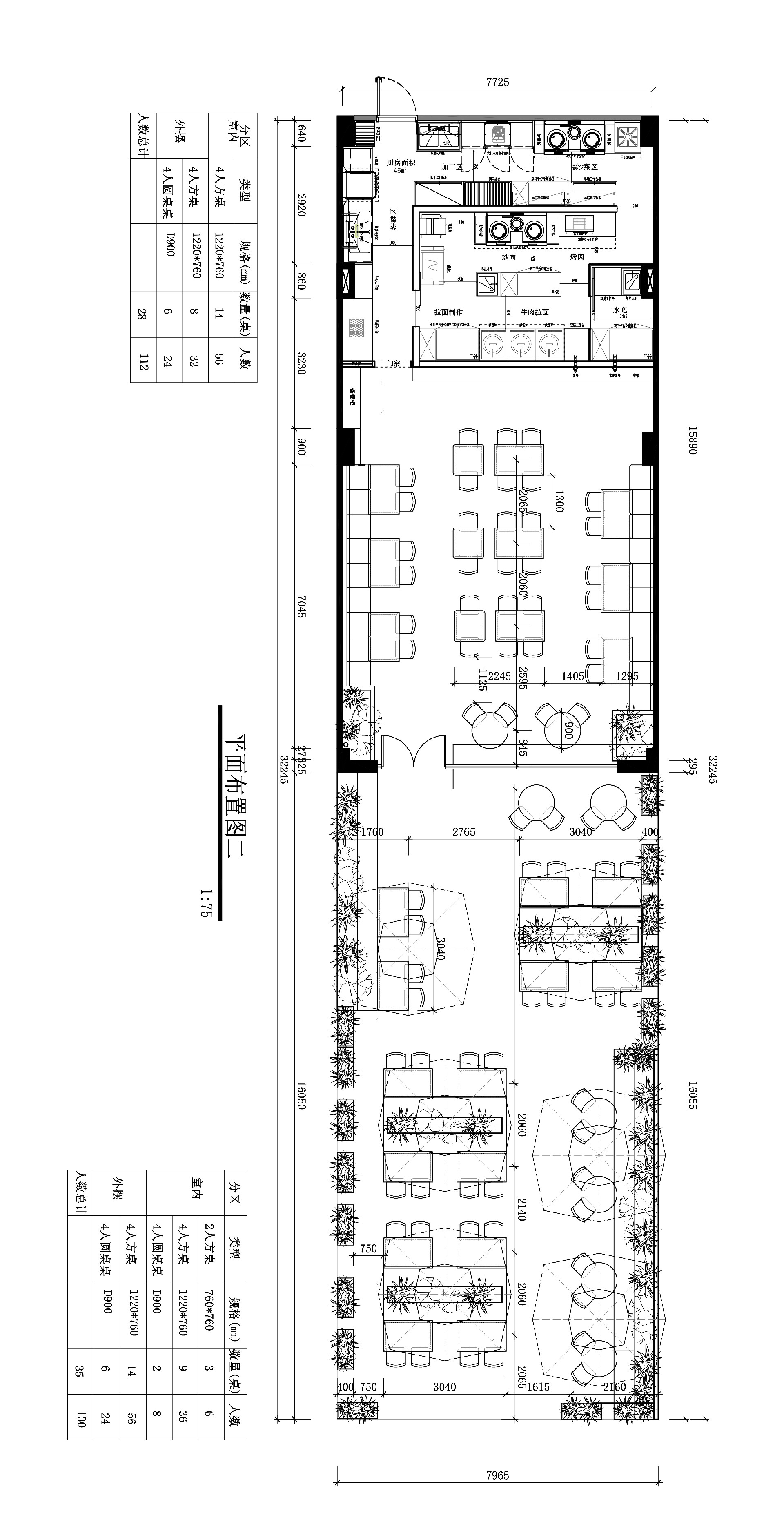
类型 | 牛肉面
风格 | 新中式
面积 | 255㎡
位置 | 埃及,开罗
——
本次项目位于埃及开罗,设计过程中我们以现代手法解构东方美学,将传统中式元素融入当代餐饮空间。通过沉稳的色调、自然的材质与考究的细节,打造出一个兼具文化底蕴与商业价值的用餐环境。












0


Previous Article
Next Article
interiors
鳍匠 - 美国俄亥俄州日料店设计
2026-03-09 109
interiors
原山造物 - 云贵川bistro餐厅设计
Yuan Shan Origins
2026-01-09 275
interiors
MUGEN - 卢森堡冷翠系日料餐厅
MUGEN
2025-10-15 534
YIWAN - 埃及开罗牛肉面馆设计
YIWAN
Restaurant | 2025-08-12
534 文章来源:本站
项目 | YIWAN
类型 | 牛肉面
风格 | 新中式
面积 | 255㎡
位置 | 埃及,开罗
——
本次项目位于埃及开罗,设计过程中我们以现代手法解构东方美学,将传统中式元素融入当代餐饮空间。通过沉稳的色调、自然的材质与考究的细节,打造出一个兼具文化底蕴与商业价值的用餐环境。












0


2026-03-09 109
Yuan Shan Origins
2026-01-09 275
MUGEN
2025-10-15 534
KUSSHI
2025-09-29 555
©万致空间设计深圳有限公司 2010-2021. ALL RIGHTS RESERVED桂ICP备16006701号-3