鄭記麵店 - 美国西雅图牛肉面馆
项目名称 | 鄭記麵店
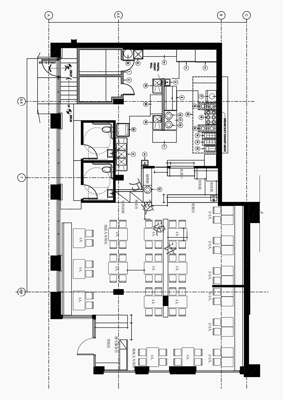
Project Name | Zhengji Noodle Store
设计风格 | 台式复古风
本案旨在打造一间充满人情味与岁月感的台式牛肉面馆。设计摒弃繁复的装饰符号,转而从质朴的材质与克制的色调中,探寻那份源于日常的松弛与温暖,让空间本身讲述关于家与传承的故事。

















Previous Article
Next Article
interiors
鳍匠 - 美国俄亥俄州日料店设计
2026-03-09 13
interiors
小鱼 - 加拿大海鲜餐厅设计
Xiao Yu
2026-01-17 130
interiors
原山造物 - 云贵川bistro餐厅设计
Yuan Shan Origins
2026-01-09 161
鄭記麵店 - 美国西雅图牛肉面馆
Zhengji noodles
Restaurant | 2025-11-11
313 文章来源:本站
项目名称 | 鄭記麵店
Project Name | Zhengji Noodle Store
设计风格 | 台式复古风
本案旨在打造一间充满人情味与岁月感的台式牛肉面馆。设计摒弃繁复的装饰符号,转而从质朴的材质与克制的色调中,探寻那份源于日常的松弛与温暖,让空间本身讲述关于家与传承的故事。

















2026-03-09 13
Xiao Yu
2026-01-17 130
Yuan Shan Origins
2026-01-09 161
Zhengji noodles
2025-11-11 314
©万致空间设计深圳有限公司 2010-2021. ALL RIGHTS RESERVED桂ICP备16006701号-3