小鱼 - 加拿大海鲜餐厅设计
项目名称 | 小鱼
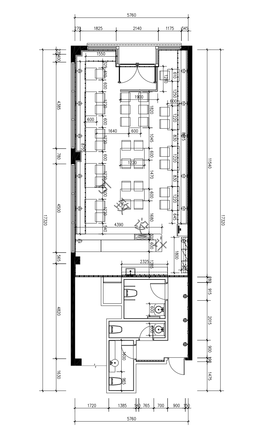
Project Name | Xiao Yu
设计风格 | 新中式
Design style | New Chinese Style
在本案设计过程中,我们想营造一种离海不远的中式惬意。设计以现代手法勾勒东方韵味,艺术漆与PU石皮衬托出粗粝自然的背景,原木与陶土雕花则注入温暖的手作感。绿色鎏金板如暗涌的水光,鱼型灯笼悬垂,呼应“鱼”的主题。














Previous Article
Next Article
interiors
鳍匠 - 美国俄亥俄州日料店设计
2026-03-09 13
interiors
小鱼 - 加拿大海鲜餐厅设计
Xiao Yu
2026-01-17 131
interiors
原山造物 - 云贵川bistro餐厅设计
Yuan Shan Origins
2026-01-09 161
小鱼 - 加拿大海鲜餐厅设计
Xiao Yu
Restaurant | 2026-01-17
130 文章来源:本站
项目名称 | 小鱼
Project Name | Xiao Yu
设计风格 | 新中式
Design style | New Chinese Style
在本案设计过程中,我们想营造一种离海不远的中式惬意。设计以现代手法勾勒东方韵味,艺术漆与PU石皮衬托出粗粝自然的背景,原木与陶土雕花则注入温暖的手作感。绿色鎏金板如暗涌的水光,鱼型灯笼悬垂,呼应“鱼”的主题。














2026-03-09 13
Xiao Yu
2026-01-17 131
Yuan Shan Origins
2026-01-09 161
Zhengji noodles
2025-11-11 314
©万致空间设计深圳有限公司 2010-2021. ALL RIGHTS RESERVED桂ICP备16006701号-3